850mq

85.000,00 €
0 Piace
0 Piace

Dati annuncio : Vendita Case, Codogne

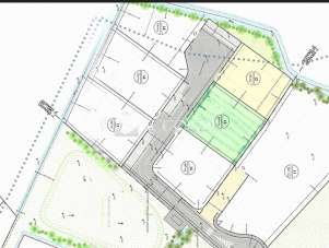
Rif. RB113 LOTTI EDIFICABILI. Nel comune di Codognè, in zona di nuova espansione urbana, in continuità con un contesto residenziale di pregio e di recente costruzione, proponiamo in vendita ultimi lotti edificabili con una superficie che varia dai 750 ai 900 mq. Il volume esistente in ogni lotto consente la realizzazione di villette UNI o BIFAMILIARI.

La nostra agenzia è in grado di offrirvi ottimi servizi e di proporvi le migliori soluzioni di mutuo! Se volete sempre essere aggiornati sulle nostre proposte immobiliari, consultate il nostro sito internet e seguiteci sulla nostra pagina Facebook!
Si intende precisare che gli indirizzi presenti negli annunci non sono identificativi dell´ubicazione precisa dell´immobile, danno un riferimento solo generico della zona al cliente che ricerca, al fine di tutelare la privacy e riservatezza del venditore. Per visionare l´immobile o per ricevere ulteriori informazioni contattateci: 0438 1962179. - Le nostre sedi : Montebelluna (TV) -- Maser (TV) - Conegliano (TV) - Villorba (TV) - Jesolo (VE). Classe Energetica: immobile non soggetto a classificazione

  • PropostaOffro
  • ContrattoVendita
  • Prezzo85.000,00 €
  • Mq totali850
  • Classe energeticaNc
  • Tipo costruzioneResidenziale
  • ProvinciaTreviso
  • ComuneCodogne
  • Data18-08-2025 06:03:15
  • CodiceEA-28A41D