Appartamento 5 vani 137mq
Dati annuncio : Vendita Appartamento, Grosseto
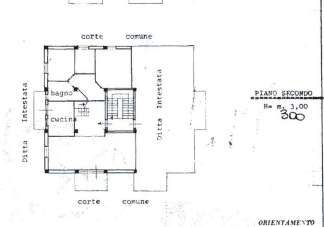
GROSSETO Via della Repubblica la nostra agenzia propone in vendita in esclusiva stupendo appartamento in palazzina signorile di soli quattro condomini al secondo ed ultimo piano SENZA ASCENSORE l´immobile è composto da un salone doppio con terrazzo, cucina abitabile con terrazza, disimpegno notte, camera matrimoniale,studio, camera doppia, bagno completamente ristrutturato 2 anni fa´,al piano sottotetto con accesso interno da ampia e scenografica scala si accede ad un disimpegno doppio volume , una comoda stanza di circa mq.25, bagno e ampio terrazzo panoramico sul parco di mq.45. l´unità immobiliare necessita di una parziale ristrutturazione al piano terra é dotata di un ampio garage libero pronta consegna chiavi in agenzia RIF CV.593 classe G OGGETTO UNICO **** IL PREZZO ATTUALMENTE VISTO IL RIBASSO E´ VERAMENTE INTERESSANTE VERO AFFARE RICHIESTA 298.000,00 TRATTABILI - SC9372606
- PropostaOffro
- ContrattoVendita
- Prezzo270.000,00 €
- Vani5
- Numero piani2
- Mq totali137
- Bagni2
- Balconi1
- Terrazzi1
- Classe energeticaG
- StatoBuono
- AscensoreNo
- CucinaAbitabile
- TerrazzoSi
- GiardinoCondominiale
- CantinaNo
- RiscaldamentoAutonomo
- ArrediNo
- BoxBox doppio in larghezza
- Cadenza spese condominialiAnnuali
- ProvinciaGrosseto
- ComuneGrosseto
- Data17-10-2025 06:20:34
- CodiceEA-071D65
