Appartamento 8 vani 226mq

Dati annuncio : Vendita Appartamento, Asti
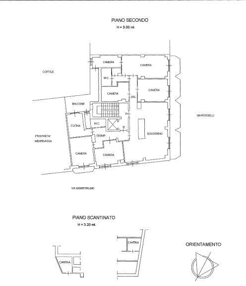
In un bel palazzo ubicato nella zona centrale della città a pochi passi da Piazza Alfieri, con vista piena sui giardini pubblici, proponiamo un appartamento signorile di ampie dimensioni che dispone di doppio ingresso, due garage in cortile e doppia cantina al piano interrato. L´alloggio, in fase di realizzazione, è stato progettato con la possibilità di creare eventualmente due unità abitative indipendenti. Attualmente è così composto: ampio ingresso living su un salone triplo angolare molto luminoso lato parco, di grande impatto, dove insistono la zona divani e la sala pranzo, proseguendo si entra nella zona laterale dove troviamo il secondo ingresso, disimpegno, due ampie camere, bagno e cucina semi abitabile con accesso diretto al terrazzino utilizzato come zona pranzo. Dal lato opposto rispetto al soggiorno un corridoio conduce alla zona notte con quattro camere, bagno, ripostiglio e armadi a muro. Il riscaldamento è centralizzato con gestione autonoma e termovalvole con contacalorie su ogni termosifone. Spese condominiali 2800 euro/anno circa esclusa la parte variabile del consumo del riscaldamento.
- PropostaOffro
- ContrattoVendita
- Prezzo230.000,00 €
- Vani8
- Mq totali226
- Camere7
- Bagni2
- Classe energeticaF
- Classe energetica (ipe)953
- Classe energetica (unità di misura)Kwh/m²a
- CucinaCucina semi abitabile
- Tipologia immobileAppartamento
- ProvinciaAsti
- ComuneAsti
- Data18-11-2025 06:11:37
- CodiceEA-D255BF











