Appartamento bilocale 62mq

Dati annuncio : Affitto Appartamento, San Donato Milanese
Rif. 253A_ San Donato Milanese – Via J. F. Kennedy, 36 – affittiamo splendido bilocale al piano rialzato/primo, la superficie commerciale è di 62 mq. L’immobile si trova all’interno di un complesso residenziale completamente recintato, con doppio accesso sia pedonale che carraio e dotato di portineria.
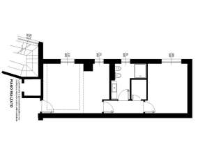
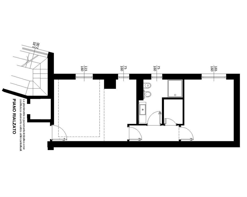
L’appartamento è in ottime condizioni, è stato recentemente ristrutturato con l’utilizzo di materiali di pregio ed è così composto: ingresso-soggiorno-angolo cottura, disimpegno, bagno finestrato, ripostiglio/lavanderia, camera matrimoniale, soppalco/ripostiglio portante in quota. Completano l’immobile una cantina ed il box singolo che sono compresi nel canone di locazione mensile richiesto.
L’appartamento è finemente e completamente arredato con mobili di pregio, tutti gli elettrodomestici della cucina, la lavatrice e l’asciugatrice sono Electrolux.
DOTAZIONI: riscaldamento centralizzato a radiatori dotati di valvole termostatiche con contabilizzatori, radiatori di arredo, acqua calda sanitaria centralizzata, pavimenti e rivestimenti in grés porcellanato, infissi in PVC doppio vetro con zanzariere ed inferriate, tapparelle automatizzate e centralizzate, impianto di condizionamento con pompa di calore soggiorno e camera, impianto di allarme, videocitofono.
SERVIZI: l’immobile si trova a 500 metri dal capolinea della M3 San Donato, lo svincolo per la tangenziale e per la Sp415 “Paullese” è a pochi passi, a circa 8 km si trova l’Aeroporto di Linate.
CLASSE ENERGETICA: G
INDICE PRESTAZIONE ENERGETICA (IPE): 185,59 KWh/m²a
CHIAMACI SENZA IMPEGNO PER UNA VISITA 02.51628192.
Se devi VENDERE o AFFITTARE il tuo immobile non esitare a contattarci per una VALUTAZIONE GRAUITA e senza impegno: info@treforimmobiliare.it
Inoltre grazie alla collaborazione con i nostri partners presenti da più di vent’anni sul territorio, POSSIAMO SEGUIRTI IN OGNI FASE TECNICA E AMMINISTRATIVA.
Ti seguiamo passo dopo passo per realizzare i tuoi sogni IN SICUREZZA.
SITO: www.treforimmobiliare.it
FACEBOOK: Trefor Immobiliare
AGENZIA: Via J. F. Kennedy, 34/B - San Donato Milanese
- PropostaOffro
- ContrattoAffitto
- Prezzo1.100,00 €
- Vani2
- Mq totali62
- Camere1
- Bagni1
- Classe energeticaG
- Classe energetica (ipe)18559
- Classe energetica (unità di misura)Kwh/m²a
- StatoRistrutturato
- CucinaAngolo cottura
- RiscaldamentoCentralizzato
- ArrediArredato
- BoxBox singolo
- Tipologia immobileAppartamento
- ProvinciaMilano
- ComuneSan donato milanese
- Data08-10-2025 05:25:02
- CodiceEA-F8EDBB