Appartamento quadrilocale 135mq

Dati annuncio : Affitto Appartamento, Milano
QUADRILATERO adiacenze
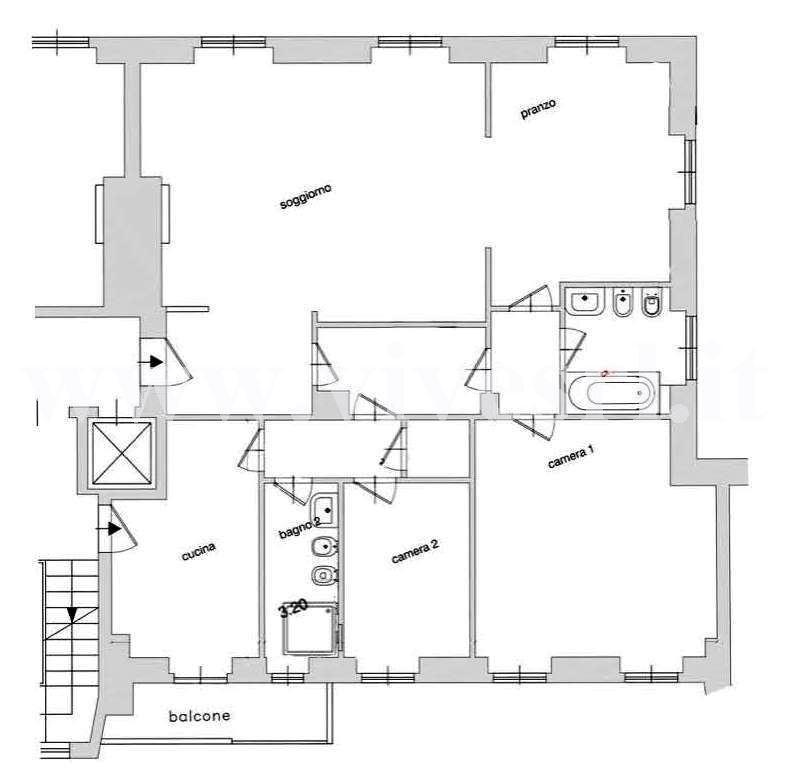
Nel cuore di Milano, a pochi passi da Piazza San Babila, in un elegante stabile signorile proponiamo in locazione un appartamento ristrutturato e parzialmente arredato di mq 135 ca. composto da doppio ingresso, grande zona living con camino in marmo, affacciata sullo storico Palazzo Serbelloni, cucina nuova abitabile con balcone, due camere silenziose, che affacciano sulla corte interna, due bagni e cantina. L´ appartamento ha parquet in tutte le stanze e aria condizionata autonoma. Lo stabile ha ascensore e portineria. Il contratto sarà a canone concordato con cedolare secca e della durata di anni 3+2. Disponibile da 1 dicembre 2025. Canone locazione annuo € 43.000 oltre a spese € 7.600. Possibilità di box nello stabile per auto di piccole/medie dimensioni. APE: G - KWh/m2a 568,34
- PropostaOffro
- ContrattoAffitto
- Prezzo3.585,00 €
- Vani4
- Mq totali135
- Camere2
- Bagni2
- Classe energeticaG
- Classe energetica (ipe)56834
- Classe energetica (unità di misura)Kwh/m²a
- StatoRistrutturato
- CucinaCucina abitabile
- ArrediArredato
- Tipologia immobileAppartamento
- ProvinciaMilano
- ComuneMilano
- Data05-11-2025 06:00:13
- CodiceEA-3A13C9











