Avenza quadrilocale 50mq
120.000,00 €

0 Piace
0 Piace
Dati annuncio : Vendita Quadrivani, Carrara
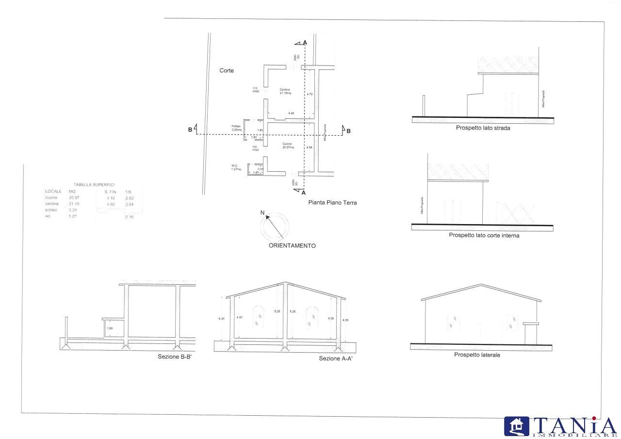
PORZIONE DI CASA IN FASE DI RISTRUTTURAZIONE AVENZA RIF AA4438\nCasa libera su tre lati composta da:\npiano terra soggiorno, cucina, bagno;\npiano mansardato due stanze e bagno.\nGiardino su tre lati.\nIn fase di ristrutturazione - Maggiori Dettagli: Ripostiglio
- PropostaOffro
- ContrattoVendita
- Prezzo120.000,00 €
- Vani4
- Mq totali50
- Camere2
- Bagni2
- Classe energeticaG
- StatoRistrutturato
- Tipo costruzione[residenziale, residenziale]
- RiscaldamentoAutonomo
- ProvinciaMassa-carrara
- ComuneCarrara
- Data07-11-2025 05:47:12
- CodiceEA-1E6A58









