Capannone 4300mq
Dati annuncio : Vendita Capannone, Bovisio-Masciago
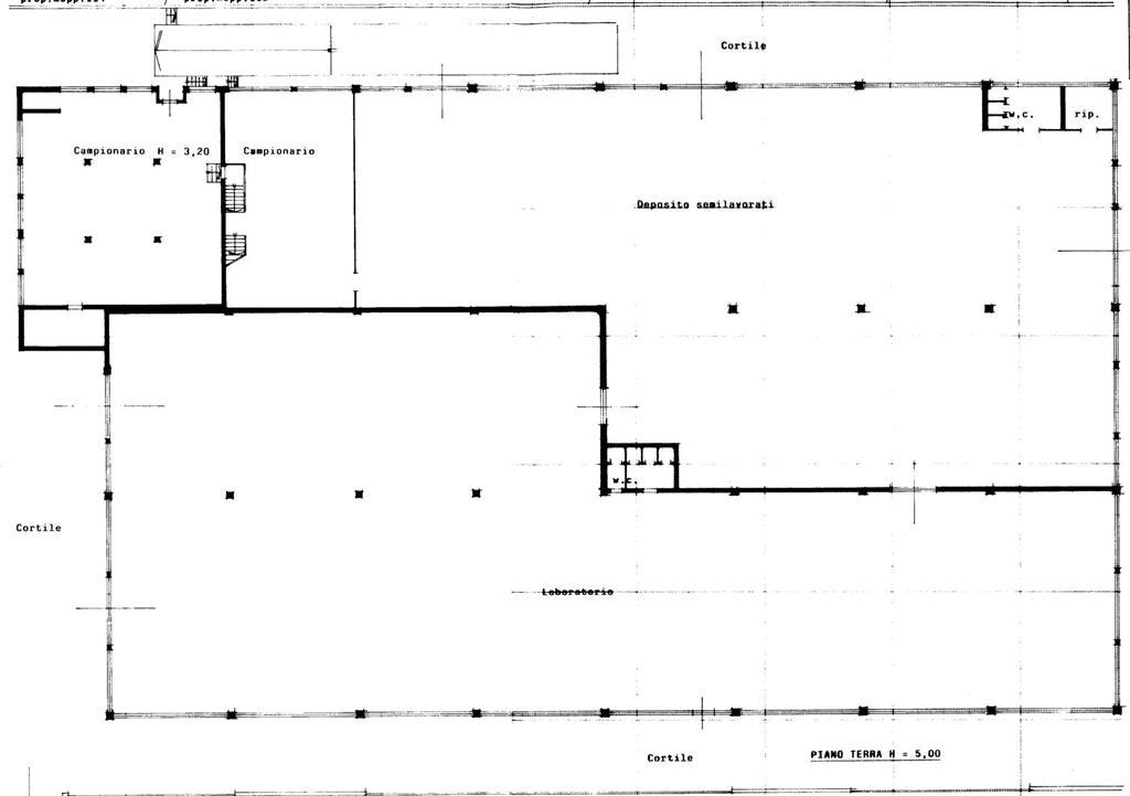
BOVISIO MASCIAGO - CAPANNONE CON UFFICI ED AMPIO CORTILE DI MQ. 4.300 - VENDITA Nei pressi della superstrada Milano - Meda - Lentate, adiacente alla SP44 ed SS527, si propone la vendita di un complesso industriale indipendente con ampi e comodi accessi su due vie perpendicolari. L´immobile è composto da un capannone industriale-artigianale di mq. 3.800 alto m. 5 sottotrave che attualmente è equamente suddiviso tra produzione e magazzino con un comodo piano ribalta posto a lato. Sul fronte è posizionata una palazzina ad uso uffici di mq. 250 posta al piano rialzato oltre ad una zona esposizione di mq. 250 posta al piano seminterrato. La proprietà si completa con un ampio cortile privato e recintato di circa 5.000 mq. Ottimo è lo stato di manutenzione generale, è dotato di cabina enel, impianto elettrico e di illuminazione, riscaldamento e videosorveglianza. Pronto all´uso. - SC8936336
- PropostaOffro
- ContrattoVendita
- Prezzo2.300.000,00 €
- Mq totali4300
- Classe energeticaF
- AscensoreNo
- CantinaNo
- ArrediNo
- Cadenza spese condominialiAnnuali
- ProvinciaMonza e brianza
- ComuneBovisio-masciago
- Data08-10-2025 06:27:38
- CodiceEA-AB5D82











