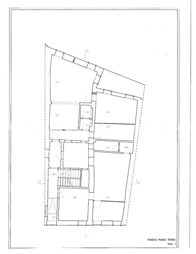
Palazzo 700mq
650.000,00 €

0 Piace
0 Piace
Dati annuncio : Vendita Palazzo, Vicenza
EDIFICIO AMBIENTALE DA RISTRUTTURARE COSTITUITO DA QUATTRO PIANI FUORI TERRA.
PER MAGGIORI INFORMAZIONI: GEOM. NICOLA VALITUTTI 348 2636911
- PropostaOffro
- ContrattoVendita
- Prezzo650.000,00 €
- Mq totali700
- Classe energeticaG
- Tipologia immobilePalazzo
- ProvinciaVicenza
- ComuneVicenza
- Data18-08-2025 05:21:08
- CodiceEA-71FA1E

Re-azione gestioni immobiliari
Vicenza







