Trapani 9 vani 438mq

Dati annuncio : Vendita Multivani, Trapani
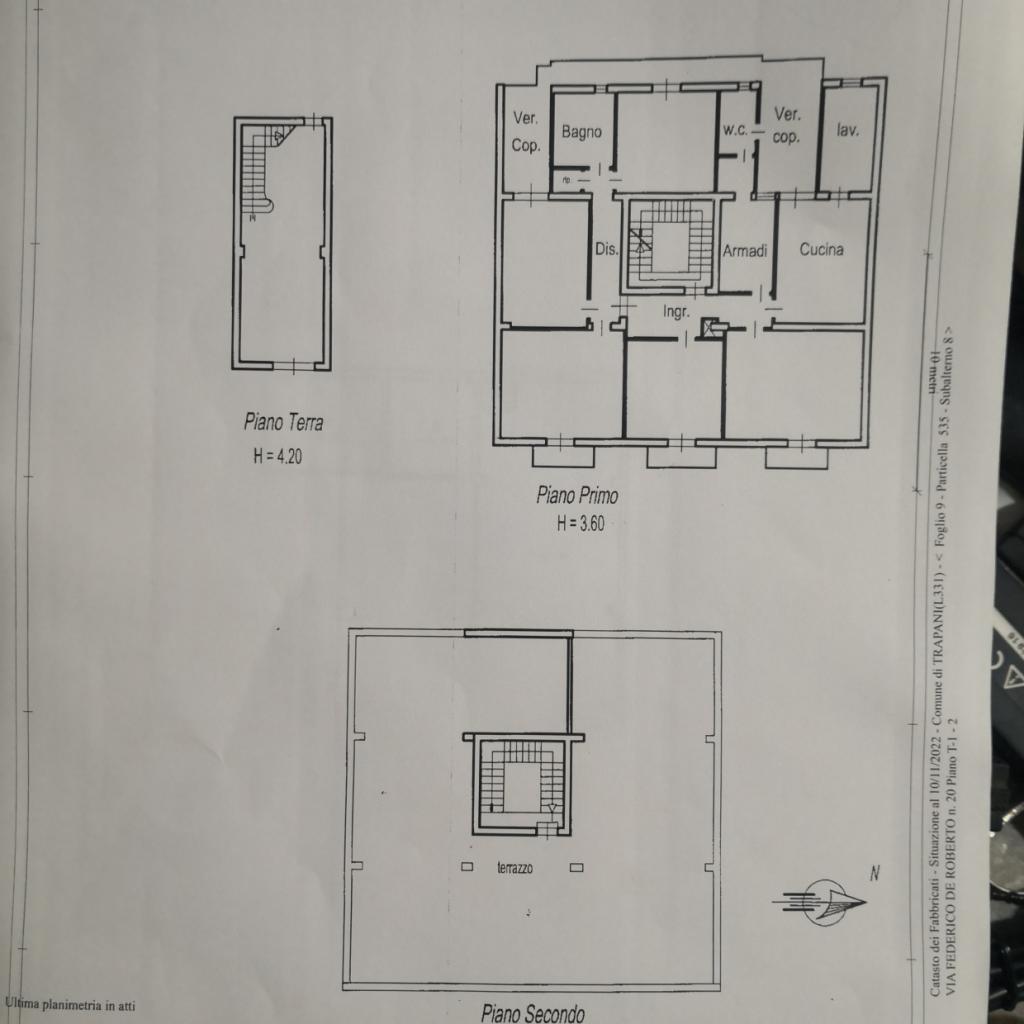
PER INFORMAZIONI CONTATTARE NINO SUL CELL. 371/4150415\n\n\nIntero stabile così composto:\nPIANO TERRA\nGarage mq.57+ Garage mq.132(compreso di corte esterna di pertinenza esclusiva) H= 4.20m.\nPIANO PRIMO\nAppartamento mq. 249 comprese aree scoperte (mq. 226 esluse verande e balconi)\ncomposto da: ingresso/disimpegno, 6 camere molto ampie(3 camere con balconi ognuna, cucina abitabile,vano lavanderia, , ripostiglio, bagno con vasca , w.c. con doccia, veranda coperta e scoperta.\nH= 3.60m.\nPIANO SECONDO\nTerrazzo scoperto\nLo stabile al primo piano è attualmente affittato ad uso struttura R.S.A. (Residenza Sanitaria Assistenziale\nI locali al piano terraneo sono attualmente affittati ad uso Laboratorio Artigianale/magazzino \nPER INFO. 3714150415\n\n\n\n\n
- PropostaOffro
- ContrattoVendita
- Prezzo285.000,00 €
- Vani9
- Mq totali438
- Camere5
- Bagni2
- Classe energeticaG
- StatoDa ristrutturare
- Tipo costruzione[residenziale, residenziale]
- CucinaCucina abitabile
- ProvinciaTrapani
- ComuneTrapani
- Data16-10-2025 05:38:40
- CodiceEA-C01F6D