vendita Piazza del Popolo monolocale 80mq
185.000,00 €
0 Piace
0 Piace
Dati annuncio : Vendita vendita, Marsala
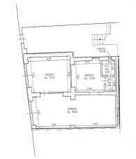
RIF.3165 - In vendita a Marsala, in centro zona via Mazzini. Locale commerciale in ottimo stato, di 80 mq, composto da unico vano e servizio. Con 2 vetrine. E´ possibile cambiare la destinazione d´uso. Richiesta EURO 185.000,00 trattabili. [Disponibile anche per l´affitto, rif. 3164]
CLASSE ENERGETICA: G
- PropostaOffro
- ContrattoVendita
- Prezzo185.000,00 €
- Vani1
- Mq totali80
- Bagni1
- Classe energeticaG
- StatoOttimo
- AscensoreNo
- ArrediNon arredato
- PortineriaNo
- ProvinciaTrapani
- ComuneMarsala
- IndirizzoPiazza del popolo
- Data11-10-2025 06:11:44
- CodiceEA-B7554A










