vendita Strada Corletto sud 7 vani 234mq
Dati annuncio : Vendita vendita, Modena
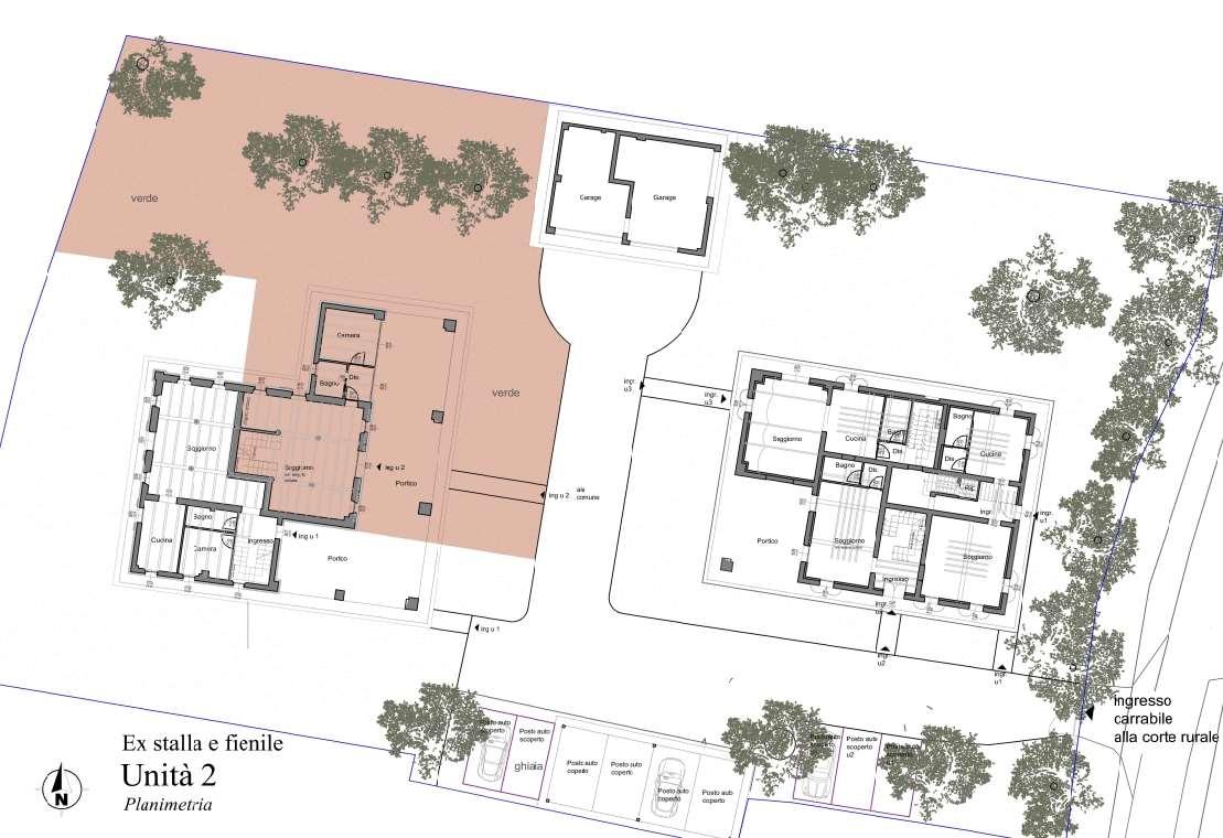
PZ2424- Nelle prime campagne modenesi, località Corletto proponiamo porzione di rustico in fase di completa ristrutturazione. La proprietà di 234 mq commerciali è composta da un ampio porticato, soggiorno, cucina abitabile, bagno al piano terra; al primo piano tre camere con due bagni. Dispone inoltre di un giardino privato di 400 mq garage e posto auto. L´immobile fa parte di un borgo che include una casa padronale e un ex fienile ristrutturato. Gli immobili saranno consegnati completamente ristrutturati, con interventi su fondazioni, tetto, deumidificazione e miglioramenti energetici. Possibilità di scegliere le finiture. Classe energetica in corso di definizione. Le immagini sono indicative.
Richiesta EURO 677.150
Per info 342/7084271 oppure 328/6351816
CLASSE ENERGETICA: A
Accessori:
Aria Condizionata, Doppi Vetri, Ingresso Indipendente, Porta Blindata
- PropostaOffro
- ContrattoVendita
- Prezzo677.150,00 €
- Anno2024
- Vani7
- Mq totali234
- Camere3
- Camere doppie2
- Bagni3
- Posti auto1
- Classe energeticaA
- StatoRistrutturato
- AscensoreNo
- CucinaAbitabile
- GiardinoPrivato
- RiscaldamentoAutonomo
- AccessoriAria condizionata, doppi vetri, ingresso indipendente, porta blindata
- PortineriaNo
- ProvinciaModena
- ComuneModena
- IndirizzoStrada corletto sud
- Data26-11-2025 05:04:47
- CodiceEA-1C1BFD








