vendita Via Lunga quadrilocale 120mq

288.000,00 €
0 Piace
0 Piace

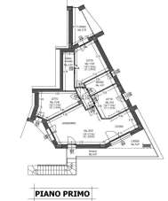
NUOVO PROGETTO OSTERIA NUOVA 3 CAMERE - RIF. MVR241 - In ottima posizione, a due passi da tutti i principali servizi, proponiamo in vendita appartamento di nuova e prossima realizzazione, posto al piano primo con ingresso comune ad altri 3 appartamenti, fornito di ascensore con collegamento diretto dal garage.

L´appartamento sviluppa su un unico livello per circa 86 mq, ed è composto da ampio luminoso soggiorno con terrazzo, cucina con accesso a terrazzo in parte loggiato, disimpegno, camera matrimoniale con cabina armadio (all´occorrenza puó diventare un secondo bagno) e terrazzo loggiato, altre 2 camere e bagno. Completa la proprietà al piano terra ampio garage di circa 32 mq.

Ottime le rifiniture presenti nel capitolato, completo di predisposizione per aria condizionata, predisposizione impianto d´allarme, impianto fotovoltaico per uso diretto, pompa di calore, riscaldamento a pavimento, tapparelle automatiche in alluminio, infissi in PVC con triplo vetro. Gli alloggi saranno realizzati in linea con le nuove leggi vigenti, per un ottimo vivere e bassissimi consumi energetici, possibilità di prenotazione e personalizzazione delle divisione degli ambienti interni. EURO 288.000 TRATTABILI (Classe energetica: A1) Per motivi di privacy la via indicata e la mappa sui portali non corrispondono esattamente alla posizione dell´ immobile. RIF. MVR241

CLASSE ENERGETICA:

Accessori:
Antifurto, Aria Condizionata, Doppi Vetri, Impianto Fotovoltaico, Impianto Satellitare, Lavanderia, Porta Blindata, Rete Dati, Ripostiglio, Zanzariere

  • PropostaOffro
  • ContrattoVendita
  • Prezzo288.000,00 €
  • Anno2025
  • Vani4
  • Piano1
  • Mq box32
  • Mq terrazzo10
  • Mq totali120
  • Camere3
  • Camere doppie1
  • Camere singole2
  • Bagni1
  • Terrazzi1
  • Classe energeticaA1
  • StatoNuovo
  • AscensoreNo
  • Tipo costruzioneSignorile
  • CucinaA vista
  • GiardinoPrivato
  • RiscaldamentoAutonomo
  • AccessoriAntifurto, aria condizionata, doppi vetri, impianto fotovoltaico, impianto satellitare, lavanderia, porta blindata, rete dati, ripostiglio, zanzariere
  • PortineriaNo
  • BoxSi
  • ProvinciaPesaro e urbino
  • ComuneMontelabbate
  • IndirizzoVia lunga
  • Data15-09-2025 05:46:42
  • CodiceEA-4F1170
Real office serv. imm.
Piazza Della Repubblica 2 - Vallefoglia