Villa 6 vani 350mq

Dati annuncio : Vendita Villa, Porto Azzurro
Immersa nella quiete della campagna elbana e circondata da una splendida pineta e da ulivi secolari, questa villa esclusiva offre un’oasi di pace e privacy a pochi minuti dal mare. Con una superficie abitabile di circa 350 mq distribuiti su due livelli, la proprietà unisce il fascino della tradizione locale alle più moderne soluzioni costruttive e tecnologiche.
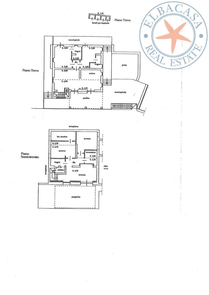
Al piano terra, si sviluppa una luminosa zona giorno composta da: ampia cucina abitabile con affaccio diretto su un gazebo di 60 mq, due camere da letto, di cui una con guardaroba e bagno en-suite, bagno con doccia, lavanderia, locale palestra con bagno dedicato. Garage e locali tecnici. Al piano superiore, un meraviglioso salone con soffitti alti quasi 6 metri accoglie lo sguardo e si apre su una terrazza panoramica di 20 mq. Completano il piano: Zona studio (eventualmente trasformabile in quinta camera con sesto bagno)
due camere matrimoniali, entrambe con bagno privato e guardaroba porticato con vista suggestiva sui vigneti e sul paesaggio naturale.
In totale, l’abitazione dispone di: 4 camere da letto (3 con bagno privato), 5 bagni. Possibilità di realizzare una quinta camera con sesto bagno. La villa è circondata da un curato giardino privato di 5.000 mq, perfettamente illuminato da 50 punti luce, che valorizzano anche di sera i 300 mq di terrazzi, completi di gazebi e tettoia. È presente la predisposizione per la realizzazione di una piscina. Rivestimento esterno in pregiata pietra locale finiture interne in resina bianca doppio cappotto termico per un ottimo isolamento riscaldamento a gasolio suddiviso a settori. Pozzo autonomo per l’approvvigionamento idrico, pannelli solari per la produzione di acqua calda predisposizione per aria condizionata impianto di video-sorveglianza e antifurto predisposto.
Situata in un contesto riservato ma comodo per raggiungere le più belle spiagge locali, la villa si trova in una delle zone più tranquille e suggestive dell’Isola d’Elba, offrendo la perfetta combinazione tra natura, comfort e vicinanza al mare.
- PropostaOffro
- ContrattoVendita
- Prezzo1.700.000,00 €
- Vani6
- Mq totali350
- Camere4
- Bagni5
- Classe energeticaD
- Classe energetica (ipe)694
- Classe energetica (unità di misura)Kwh/m²a
- CucinaCucina abitabile
- GiardinoPrivato
- Tipologia immobileVilla
- ProvinciaLivorno
- ComunePorto azzurro
- Data12-10-2025 05:58:00
- CodiceEA-091788











