Villa 8 vani 388mq

Dati annuncio : Vendita Villa, Gatteo
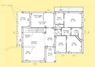
GATTEO il località Sant´Angelo, vendiamo una esclusiva residenza con giardino in posizione tranquilla e riservata ma vicino a tutti i servizi e non distante dalla riviera romagnola. La soluzione caratterizzata da comode superfici è composta da un piano terra ad uso abitativo con un soggiorno, una cucina abitabile, due o tre camere da letto e i doppi servizi. Un piano sottotetto fruibile e luminoso con diversi spazi da dedicare a zona notte e vari hobbies. Un piano seminterrato con diversi vani ad uso cantina o ripostiglio, il garage e una grande taverna con cucina e camino, da cui si accede al giardino. All´esterno, la proprietà si estende per oltre 2800 mq, con un parco piantumato dove è possibile realizzare una piscina e zone pavimentate, oltre a spazi da dedicare al barbecue e al giardinaggio. Soluzione ben tenuta e abitabile, impiantistica in ottime condizioni e con caldaia a condensazione. La classe energetica ´´E´´ consente ancora per molto tempo di non essere soggetti ad obblighi di miglioramento energetico. Ideale per una famiglia numerosa o per due nuclei familiari in quanto divisibile in due unità immobiliari. Il prezzo è trattabile.
Per informazioni ACASA : Geom. Andrea Placuzzi tel 328/8255174. Tutte le proposte su ACASA.INFO.
NB le presenti informazioni non costituiscono elemento contrattuale.
- PropostaOffro
- ContrattoVendita
- Prezzo520.000,00 €
- Vani8
- Mq totali388
- Camere3
- Bagni4
- Classe energeticaE
- Classe energetica (ipe)1423
- Classe energetica (unità di misura)Kwh/m²a
- CucinaCucina abitabile
- GiardinoPrivato
- Tipologia immobileVilla
- ProvinciaForli-cesena
- ComuneGatteo
- Data28-08-2025 05:10:25
- CodiceEA-38C167